Studiokub

Studio de Jardin 33m ² Kubo Bruni

Studiokub : concepteur de studios de jardin, chalets et bureaux de jardins
SANS PERMIS DE CONSTRUIRE
Studio Clé en Main
Devis gratuit
Étape 1 sur 6
Quelle configuration souhaitez-vous ?

Kubo Bruni, le studio de jardin élégant de 33 m ²

Le studio de jardin Kubo Bruni, avec ses 33 m², offre un espace lumineux et accueillant, idéal pour deux personnes en résidence secondaire ou pour une location contemporaine, combinant élégance, confort et convivialité, et s’ouvrant sur une terrasse généreuse pour profiter pleinement des moments en plein air.

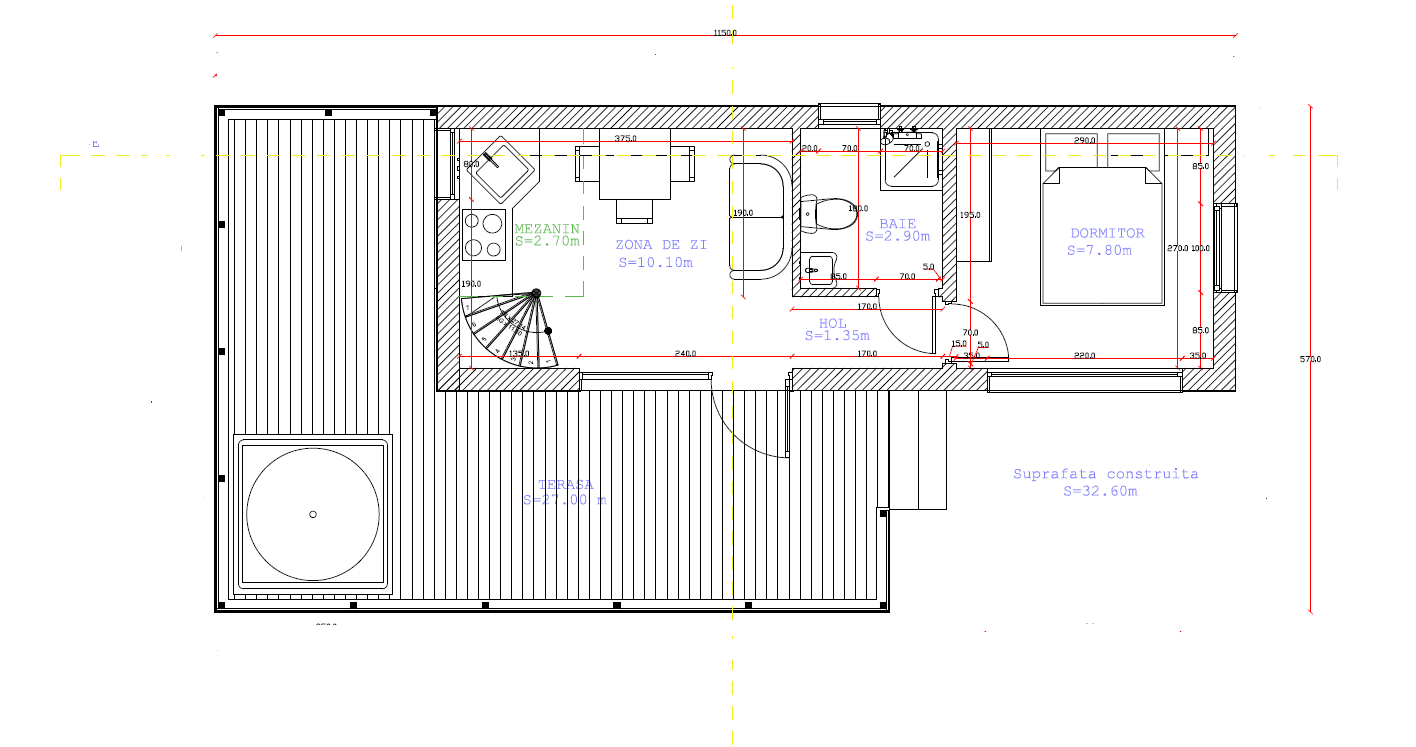
Les photos & plans du studio de jardin Kubo Bruni

Les détails techniques

Découvrez le studio de jardin Kubo Bruni

Le studio de jardin Kubo Bruni séduit par son architecture en bois raffinée, qui lui confère une atmosphère à la fois chaleureuse et contemporaine. Conçu pour deux personnes, ce studio de jardin design offre un espace cosy et fonctionnel, où chaque détail est pensé pour le confort et l’esthétique. La terrasse intégrée prolonge naturellement la pièce de vie, offrant un cadre idéal pour se détendre, prendre ses repas ou profiter de la lumière du jour. Alliant élégance, fonctionnalité et ambiance chaleureuse, le Kubo Bruni constitue une solution parfaite pour une résidence secondaire ou un logement indépendant, apportant charme et convivialité dans un cadre naturel et apaisant.

Choisir le studio de jardin Kubo Bruni, c’est opter pour un habitat en bois moderne et élégant, pensé pour accueillir deux personnes dans un cadre chaleureux et lumineux. Ce studio de jardin compact et design propose un aménagement intérieur réfléchi, favorisant la circulation et le confort, tout en conservant un style épuré et harmonieux. La terrasse spacieuse prolonge le séjour vers l’extérieur, créant un véritable lieu de vie supplémentaire pour profiter des journées ensoleillées ou partager des moments conviviaux. Adapté comme résidence secondaire ou logement indépendant, le Kubo Bruni combine fonctionnalité, confort et esthétique, offrant une expérience résidentielle agréable, pratique et élégante.

Le studio de jardin Kubo Bruni, conçu pour deux personnes et doté d’une terrasse accueillante, constitue un petit logement indépendant et élégant, idéal comme résidence secondaire ou espace locatif. Selon la surface et la réglementation locale, son installation peut nécessiter une déclaration préalable de travaux ou un permis de construire afin de respecter les normes d’urbanisme. Ce studio en bois met l’accent sur le confort, la luminosité et la fluidité des espaces, tout en créant une ambiance chaleureuse et design. Avant tout projet, il est conseillé de se renseigner auprès de la mairie pour garantir une installation conforme et sécurisée.

studio jardin kubo bruni