Studiokub

Studio de Jardin 33m ² Kubo Family

Studiokub : concepteur de studios de jardin, chalets et bureaux de jardins
SANS PERMIS DE CONSTRUIRE
Studio Clé en Main
Devis gratuit
Étape 1 sur 6
Quelle configuration souhaitez-vous ?

Kubo Family, le studio de jardin design de 33 m ²

Le studio de jardin Kubo Family de 33 m² propose un espace cosy et lumineux, parfait pour une résidence secondaire ou une location contemporaine, combinant autonomie, praticité et convivialité tout en tirant pleinement parti de sa grande terrasse de 27 m².

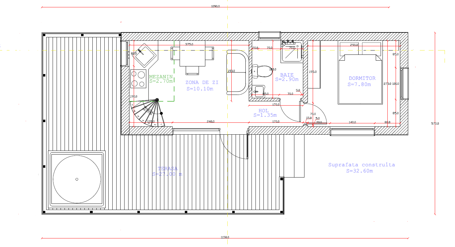
Les photos & plans du studio de jardin Kubo Family

Les détails techniques

Découvrez le studio de jardin Kubo Family

Le studio de jardin Kubo Family se distingue par son design contemporain et son aménagement optimisé, idéal pour accueillir confortablement deux personnes. Avec ses 33 m², il offre un intérieur lumineux et bien pensé, où chaque espace est exploité pour maximiser confort et praticité. La grande terrasse de 27 m² prolonge le séjour vers l’extérieur, créant un espace convivial parfait pour profiter du soleil, prendre ses repas ou se détendre en plein air. Pensé comme une résidence secondaire modulable, le Kubo Family combine esthétique, fonctionnalité et atmosphère chaleureuse, offrant une expérience unique d’habitat compact sans compromis sur le confort et la qualité de vie.

Opter pour le studio Kubo Family, c’est privilégier une solution d’habitat moderne et fonctionnelle, parfaitement adaptée à la vie à deux ou à l’usage comme résidence secondaire. Ses 33 m² ont été pensés pour offrir un espace intérieur confortable, lumineux et fluide, où la circulation et l’organisation des pièces sont optimisées. La terrasse de 27 m² transforme ce studio en un véritable lieu de vie extérieur, idéal pour profiter du jardin ou recevoir un invité. Le Kubo Family séduit par sa capacité à allier intimité, design et praticité, offrant un logement modulable qui répond aux besoins actuels en matière d’habitat compact et élégant.

Le studio de jardin Kubo Family, avec ses 33 m² et sa grande terrasse de 27 m², constitue un petit habitat moderne et indépendant, parfait comme résidence secondaire ou espace de détente pour deux personnes. Selon la réglementation locale et la surface totale, l’installation peut nécessiter une déclaration préalable de travaux ou un permis de construire, afin de se conformer aux règles d’urbanisme. Ce studio design combine confort, luminosité et optimisation de l’espace, tout en offrant un espace extérieur agréable pour profiter pleinement du cadre de vie. Avant tout projet, il est recommandé de vérifier les formalités légales auprès de la mairie pour garantir une installation conforme et sécurisée.

studio kubo family exterieur