Studiokub

Studio de jardin 54m ² Nordic Dream

Studiokub : concepteur de studios de jardin, chalets et bureaux de jardins
SANS PERMIS DE CONSTRUIRE
Studio Hors d'eau / Hors d'air
Devis gratuit
Étape 1 sur 6
Quelle configuration souhaitez-vous ?

Nordic Dream, le studio de jardin au style scandinave

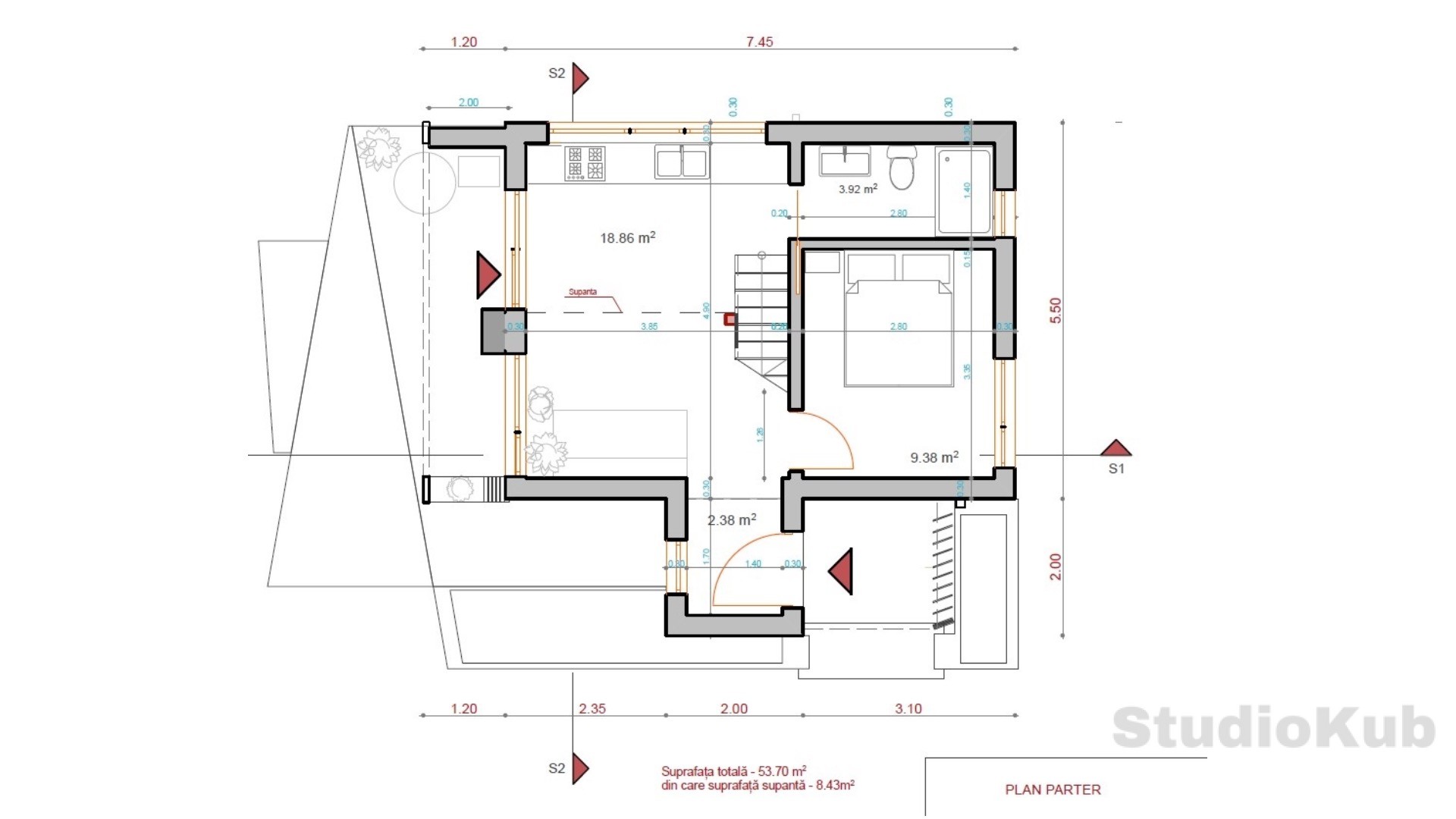
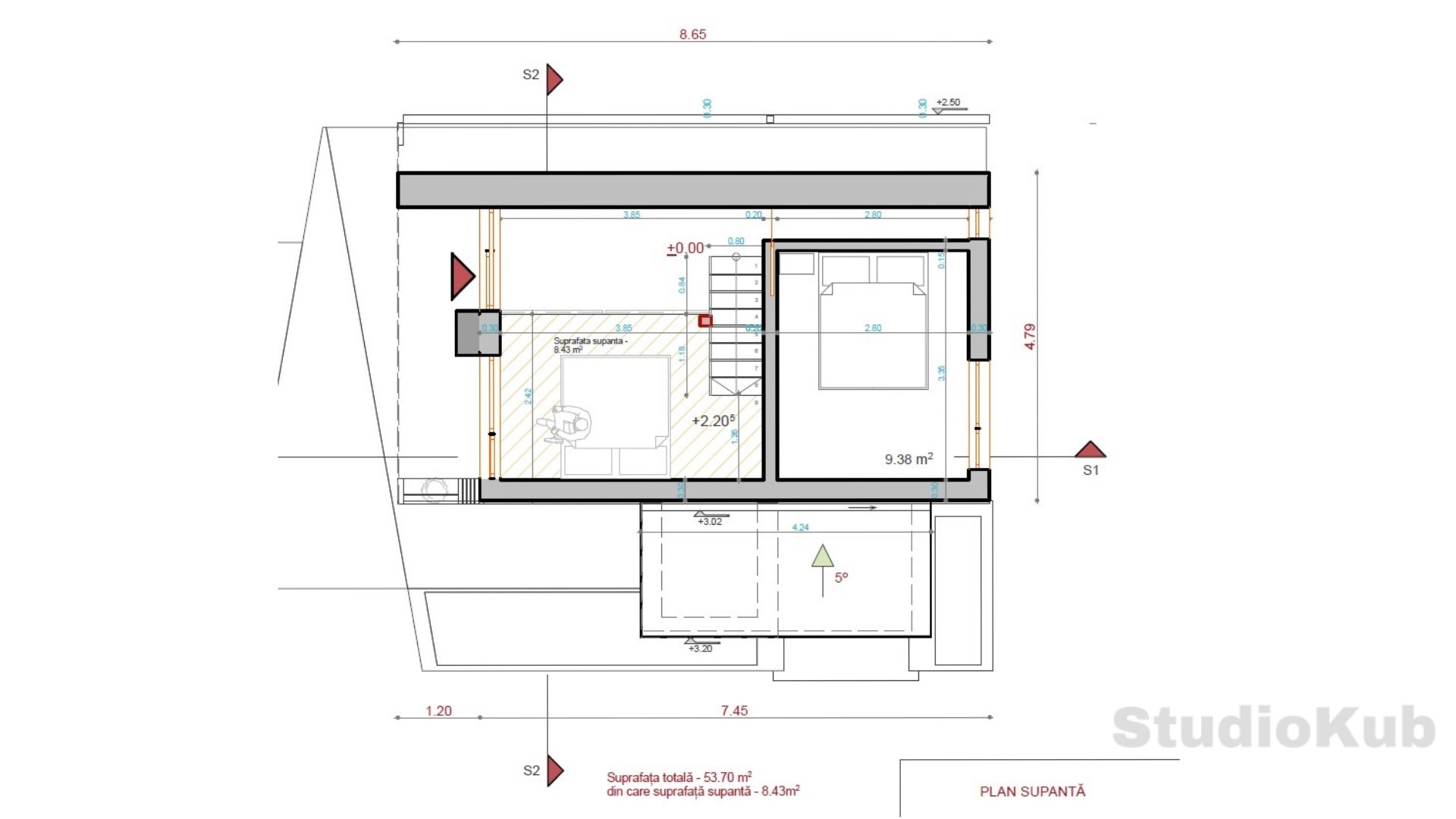
La version mezzanine et légèrement agrandie du KUB 19 et c’est une véritable maison en miniature (les murs ont 30 cm d’épaisseur) avec une isolation performante et peut être utilisée aussi bien en été qu’en hiver, à la montagne ou à la mer. Le produit est idéal comme chalet à louer pour le tourisme ou en usage personnel. Les matériaux utilisés sont de qualité supérieure.

Les photos & plans du studio de jardin Nordic Dream

Les détails techniques

Vous informer sur le studio de jardin Nordic Dream

Le studio de jardin séduit de plus en plus de propriétaires à la recherche d’un espace supplémentaire sans engager de lourds travaux d’extension. Cette surface, bien que compacte, permet d’aménager un lieu de vie confortable, polyvalent et parfaitement intégré à l’environnement extérieur. Adapté aussi bien à un usage personnel qu’à un projet locatif, il combine intelligemment optimisation de l’espace, budget maîtrisé et démarches administratives allégées.

En France, une surface inférieure ou égale à 20 m² ne nécessite généralement qu’une déclaration préalable de travaux auprès de la mairie, sauf contraintes spécifiques du Plan Local d’Urbanisme ou présence en zone protégée. Ce seuil permet d’éviter la demande d’un permis de construire, ce qui réduit les délais et formalités administratives. Toutefois, il reste essentiel de vérifier les règles locales et les éventuelles restrictions liées à l’implantation, aux matériaux ou aux raccordements aux réseaux.

Cette surface permet de réduire les dépenses liées aux matériaux, à la main-d’œuvre et aux aménagements intérieurs tout en offrant un confort adapté à différents usages. Grâce à un agencement bien pensé, on retrouve un coin nuit, une kitchenette, une salle d’eau et un espace de rangement sans sacrifier la circulation. La compacité de ce type de studio permet également de limiter les frais d’entretien et de chauffage, ce qui en fait une option économiquement intéressante sur le long terme.

studio jardin nordic dream entree